
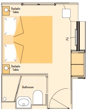
Scenic Tsar, launched in 2013, was the first ‘new-build’ ship to be launched onto Russia’s waterways for over 25 years. It is also the first boutique ‘small’ ship to join the ever-growing fleet of luxury vessels. There are just over one hundred guests onboard, so you get a real sense of space, accompanied by an intimate atmosphere. Virtually all staterooms and suites boast their own private full-length balconies and each cabin has modern and stylish en-suite bathrooms, satellite TV, in-room safe, mini-bar and complimentary Wi-Fi. To enjoy even more space, Scenic Tsar offers four sumptuous and finely appointed Royal Suites, each one exuding a reassuring level of luxury in their fine furnishing, impeccable finish and carefully chosen amenities.
Ship Calendar
Destination | Oct | Nov | Dec | Jan 2026 | Feb | Mar | Apr | May | Jun | Jul | Aug | Sep |
---|
Ship Details
Ship Categories




